
UDLEJET
Unikt og indbydende kontorlejemål i flotte arkitektoniske rammer
Lejemålet er beliggende yderst centralt, blot 5 minutters gang fra Roskilde station og Stationscentret, som byder på både indkøb, spisesteder, kiosk mm. Ligeledes kort afstand til byens absolutte centrum og hovedstrøg.
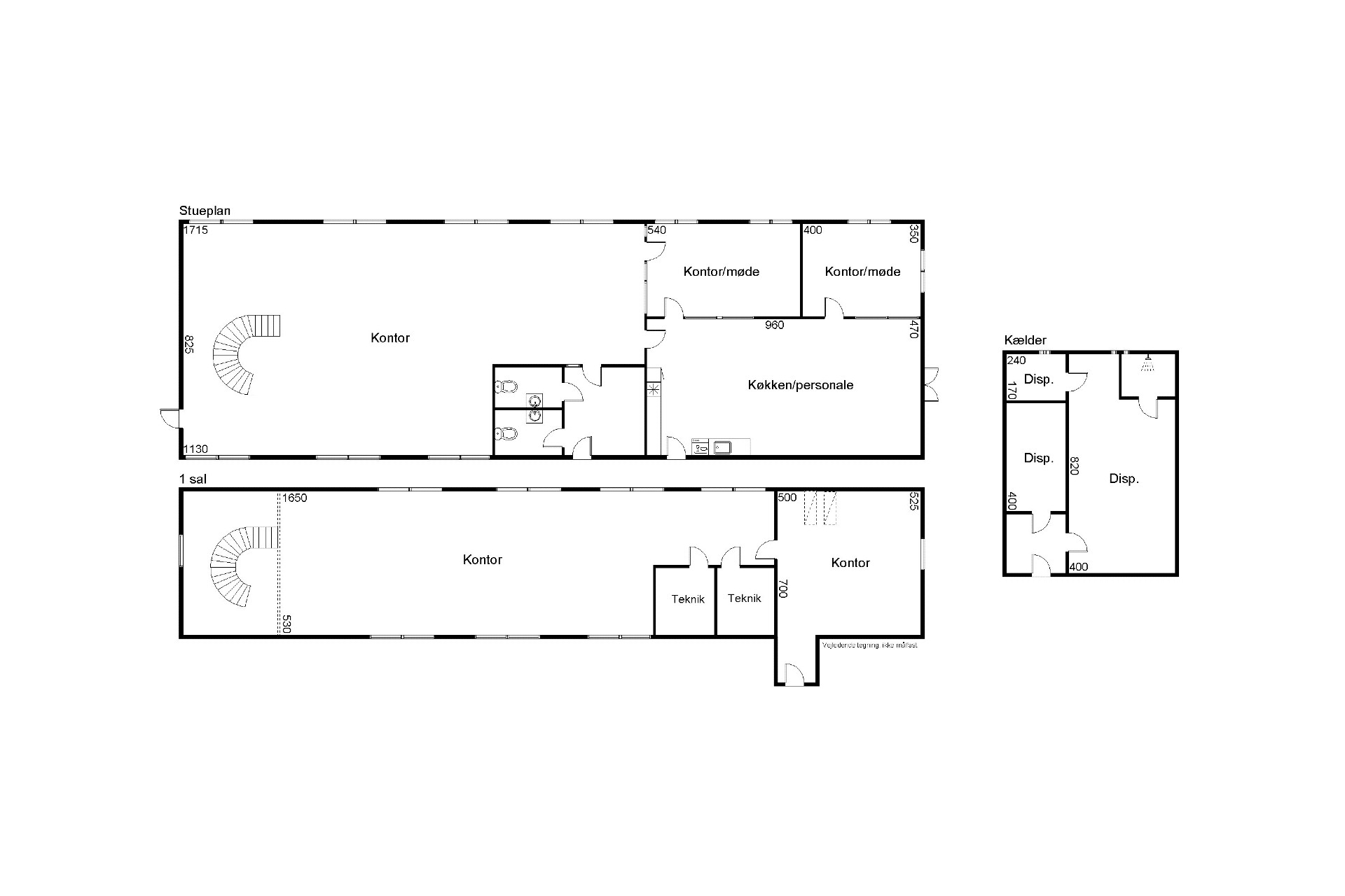
Lejemålet er placeret i smuk, klassisk rødstensejendom og fordeler sig over i 3 etager.
Stueplan byder på rummelig entré, nydeligt, rummeligt og åbent kontorareal samt 2 større møderum/cellekontorer. Moderne personalekøkken med god plads til borde mm. Man overvældes særligt at den enorme loftshøjde og de meget flotte, store buede vinduespartier på alle sider af ejendommen. Langs den ene facade er der smukke træer som giver et smukt liv og kontrast til lejemålet.
Fra gavlen mod vest, er der direkte udgang til hyggeligt miljø med flisebelagt terrasse, til fælles afbenyttelse med ejendommens øvrige lejere.
Gedigen, svungen trappe fører op til 1. salen hvor der ligeledes er masser af kvm. i åbent miljø. Her er loft til kip og synlige hanebånd.
I enden – mod øst – stort møderum/kontor, ligeledes med rigtig fint lysindfald.
Herudover 2 mindre teknikrum samt adgang mindre fælles baglokale/bagtrappe.
Lejemålet har pæne erhvervstæpper i mørke farver. Herudover findes ventilationsanlæg i kontorarealerne på 1. sal.
Fra bagtrappen er der adgang til virkelig praktisk og anvendeligt kælderrum med bl.a. gode opbevaringsreoler i stål og med mindre brusebadeværelse, som er praktisk hvis medarbejdere, tager cyklen til job.
Parkering efter nærmere aftale (i den fælles gård).
Vil du se mere?
Kontakt osBestil materiale
Ring til os på 2424 9898Send en mail på info@heidebyestate.com












