
SOLGT
KØBENHAVNSVEJ 7B, 4000 ROSKILDE – LH2514
Velbeliggende lille erhvervsenhed
Med meget central placering lige ved Røde Port, finder du dette lille baghus, der er registeret til erhverv.
Baghuset er placeret i en mindre ejerforening, sammen med 6 boligenheder.
Igennem flere år har det været anvendt til lager i stueetagen og kontor på 1. salen.
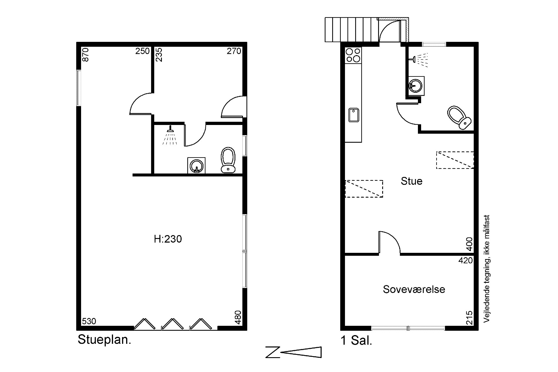
Stueetagen har port ind til lagerdel. Herudover er der entré og badeværelse.
Førstesalen har indgang via udvendig trappe og er indrettet med åbent kontor med køkkenfaciliteter, badeværelse samt møderum/kontor.
Vil du se mere?
Kontakt osBestil materiale
Ring til os på 2424 9898Send en mail på info@heidebyestate.com













